46 BOAT DOCK ROAD Lakeview AR 72642
$189,900
Call Now: (870) 449-6395
Remarks
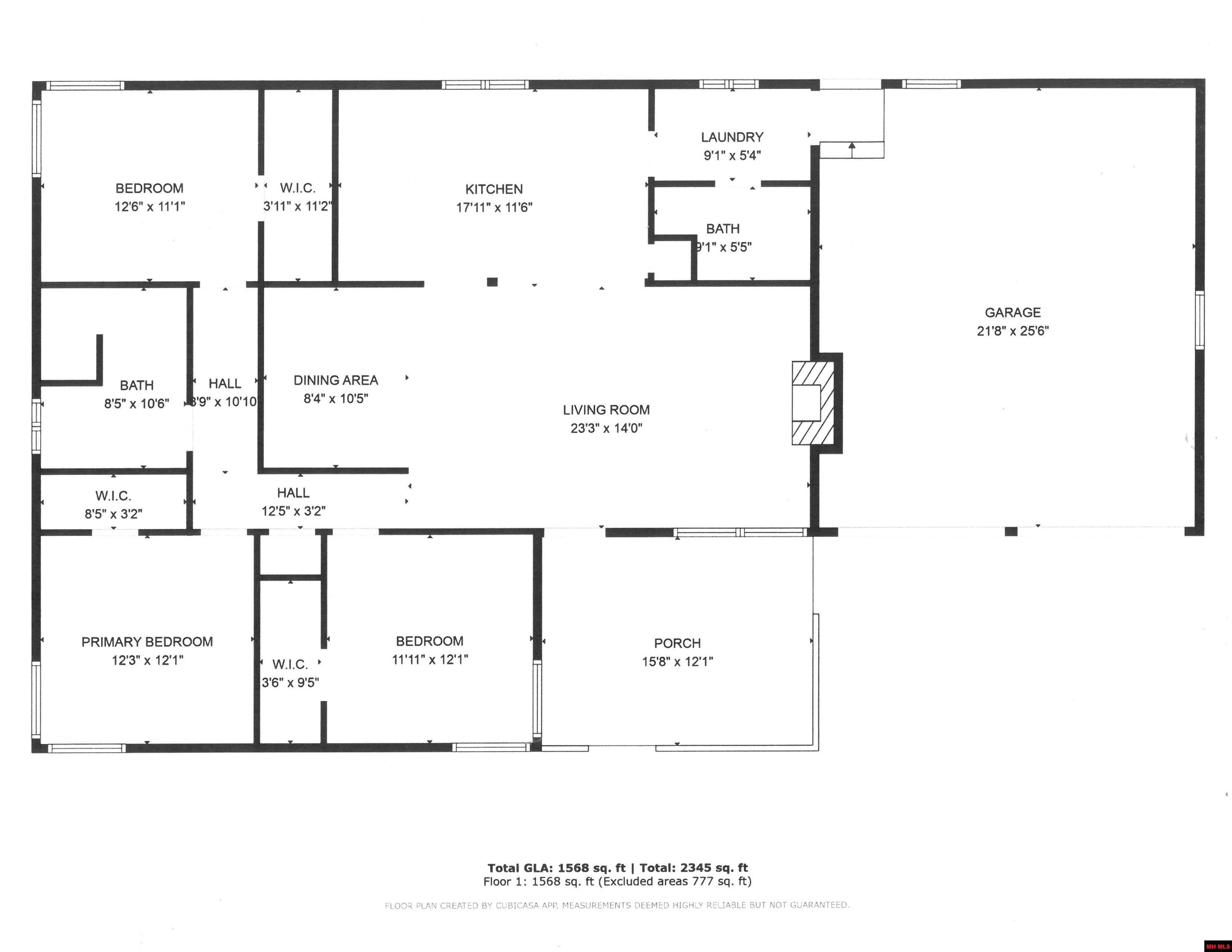
Experience the charm of living near Lakeview Marina, with convenient access to the Marina, Bull Shoals Lake boat ramp and swim beach. This budget-friendly home features three bedrooms, two baths, a spacious kitchen, and a cozy living room complete with a fireplace for those cool evenings. Enjoy a level yard with a privacy fence and an attached two-car garage plus large patio for sharing stories of day. With a new roof and a complete septic system recently installed, this home is ready for your personal touch. Priced to sell, this opportunity won’t last long—don’t let it slip away!
Map
Neighborhood
This data up-to-date as of December 17, 2025 time - 08:39 PM. For the most current information, contact Home and Ranch Realty LLC, (870) 449-6395, alesia@homeandranchrealty.com. This data is updated daily. Some properties which appear for sale on this web site may subsequently have sold and may no longer be available.
The data relating to real estate for sale on this web site comes in part from the Broker Reciprocity (SM) Program of the Cooperative Arkansas REALTORS® Mountain Home Multiple Listing Service. Real estate listings held by brokerage firms other than Studio 11 Productions are marked with the Broker Reciprocity (SM) logo and information about them includes the name of the listing brokers. Broker Reciprocity (SM) information is provided exclusively for consumers' personal, non-commercial use and may not be used for any purpose other than to identify prospective properties consumers may be interested in purchasing.
Information deemed reliable but not guaranteed. Listing broker has attempted to offer accurate data, but buyers are advised to confirm all items.
Copyright © 2002 - 2025 Cooperative Arkansas REALTORS® Mountain Home Multiple Listing Service. All rights reserved.
The data relating to real estate for sale on this web site comes in part from the Broker Reciprocity (SM) Program of the Cooperative Arkansas REALTORS® Mountain Home Multiple Listing Service. Real estate listings held by brokerage firms other than Studio 11 Productions are marked with the Broker Reciprocity (SM) logo and information about them includes the name of the listing brokers. Broker Reciprocity (SM) information is provided exclusively for consumers' personal, non-commercial use and may not be used for any purpose other than to identify prospective properties consumers may be interested in purchasing.
Information deemed reliable but not guaranteed. Listing broker has attempted to offer accurate data, but buyers are advised to confirm all items.
Copyright © 2002 - 2025 Cooperative Arkansas REALTORS® Mountain Home Multiple Listing Service. All rights reserved.
